Apartment (near LE BOURGET) in Seine-Saint-Denis, Île-de-France/Paris
Property. Ref: JSV-31248 Date Added: 17-March-2026
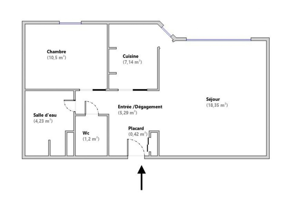
- 2 Bedrooms
- Size: 47.13 m2
- Plot: 29 m2
or email: enquiries@internationalprivatefinance.com
Add to My Favourites To store your favourites list for your next visit, you will need to log in above or sign up.
93350 LE BOURGET 2 ROOM APARTMENT WITH GARDEN TERRACE WEST FACING NO OVERLOOKING BUILDINGS LE BOURGET RER B STATION 600 M AWAY CLOSE TO SCHOOLS AND SHOPS VIDEO ON REQUEST HAMILTON offers you this 2 ROOM 1 BEDROOM APARTMENT, of 47 M² CARREZ. A 29 sq m outdoor space, including a terrace and garden, is accessible from the living room. The apartment comprises an entrance hall, a living room (7 sq m), an adjoining kitchen, a bedroom, a shower room, and a separate WC. Energy Performance Certificate (EPC): D, electric heating. A large parking space in the basement is available at an additional cost. For more information or to arrange a viewing, please do not hesitate to / arnaud.vautrin@ -hamilton
Energy Consumption: 249 kWh/m²/yr
CO² Emissions: 7 kg/m²/yr
Interested? Take the next step...
Why Sign Up?
- Save your search criteria
- Recommended properties
- Ideal Property Email Alerts
- Save & Print favourites
- Ask property questions
Must Read Articles
Useful Contacts
- UK Telecom (expat phone, bb & TV)
- LeFrenchMobile (prepaid SIM card)
- French Insurance in English
- English Notaire Advisor
- Cordiez Solicitors (Franco-British specialists in French property law)
- Foreign Currency Direct (Currency)
- George East's books on France
- France Car Hire (in all major cities, train stations & airports)
- View All
