Plot (near MEGEVE) in Haute-Savoie, Rhône-Alpes
Property. Ref: JSV-28823 Date Added: 20-June-2025
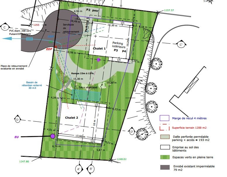
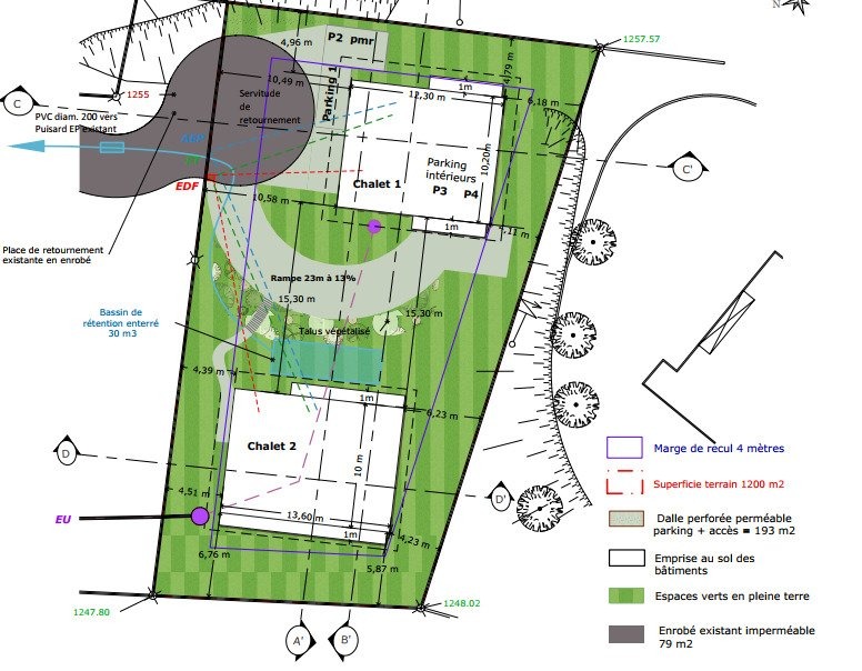
- Plot: 0.29 acre
or email: enquiries@internationalprivatefinance.com
Add to My Favourites To store your favourites list for your next visit, you will need to log in above or sign up.
HAMILTON presents this 1,180 sqm plot of land, ideally located in one of Megève's most sought-after neighborhoods. Enjoying open views and set at the end of a quiet cul-de-sac, the property offers peace and privacyhighly coveted in this area. The land is sold with a cleared and finalized building permit for the construction of two chalets, with a total floor area of 436 sqm. The project is offered turnkey, with earthworks already underway. A rare opportunity for a secure investment and a bespoke development in the heart of Megève.
Interested? Take the next step...
Why Sign Up?
- Save your search criteria
- Recommended properties
- Ideal Property Email Alerts
- Save & Print favourites
- Ask property questions
Must Read Articles
Useful Contacts
- UK Telecom (expat phone, bb & TV)
- LeFrenchMobile (prepaid SIM card)
- French Insurance in English
- English Notaire Advisor
- Cordiez Solicitors (Franco-British specialists in French property law)
- Foreign Currency Direct (Currency)
- George East's books on France
- France Car Hire (in all major cities, train stations & airports)
- View All
